Uitstekend geïsoleerd, volop zon en instapklaar wonen.
Sommige woningen hebben alles mee: een rustige ligging aan een groenstrook, uitstekende isolatie, een zonnige tuin én een hoogwaardige afwerking. Slangenburg 11 is zo’n woning. Deze moderne eengezinswoning is door de huidige bewoners met veel oog voor detail verbouwd tot een meer dan instapklare woning. De uitstekende isolatie, zonnepanelen en meerdere airco’s zorgen voor een comfortabel binnenklimaat in elk seizoen. Met een energielabel A+ heeft u lage energiekosten en mogelijk korting op de hypotheekrente. Met maar liefst vijf slaapkamers, een luxe keuken en een lichte woonkamer is dit werkelijk het neusje van de zalm.
De woning ligt in het vernieuwde deel van de geliefde woonwijk Veldhuizen aan een autovrije straat waar kinderen veilig kunnen spelen en het rustig wonen is. Parkeren kan op enkele meters afstand en recht voor de deur bevindt zich een fraaie groenstrook. Via de fietstunnel bereik je snel winkelcentrum Parkweide met diverse winkels en twee supermarkten. Scholen, speelvoorzieningen en het centrum van Ede liggen op loop- of fietsafstand. Ook de uitvalswegen naar de N224 en de A12 richting Arnhem en Utrecht zijn uitstekend bereikbaar.
Indeling
De woning is van hal tot zolder keurig afgewerkt. In de hal bevinden zich de vernieuwde toiletruimte (2022), de meterkast en de trapopgang. De stijlvolle grijze tegelvloer met comfortabele vloerverwarming loopt door over de gehele begane grond en zorgt voor een luxe uitstraling.
De tuingerichte woonkamer is heerlijk licht, beschikt over een deur naar de achtertuin en een praktische trapkast. De strakke afwerking maakt dat verhuizen hier direct mogelijk is. Door de recent geïnstalleerde airconditioning blijft het hier ook in de zomer heerlijk koel.
Aan de voorzijde bevindt zich de open keuken met moderne hoekopstelling en alle gewenste inbouwapparatuur, waaronder een gaskookplaat met afzuigkap, oven (2025), vaatwasser (2025) en een Amerikaanse koel-vriescombinatie (ter overname). Vanuit de keuken kijk je vrij uit over de rustige straat en het groen voor de woning.
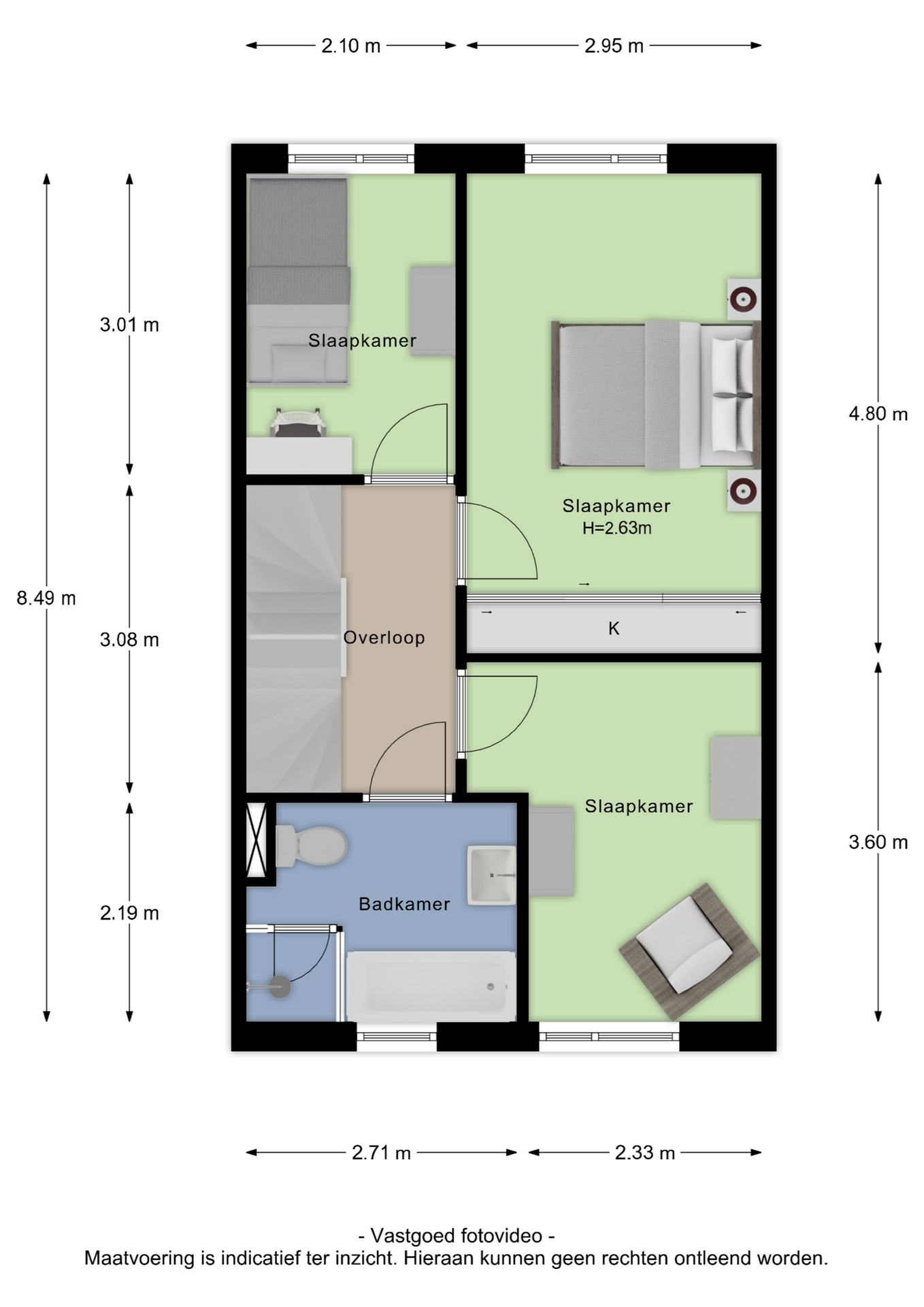
Eerste verdieping
Vanaf de overloop zijn drie slaapkamers en de ruime badkamer bereikbaar. De gehele verdieping is voorzien van een nette laminaatvloer. De badkamer is licht betegeld en ingericht met een ruim ligbad, aparte douche, tweede toilet en een wastafelmeubel. Dankzij het raam is er prettig daglicht en natuurlijke ventilatie.
Tweede verdieping
Via een vaste trap kom je op de tweede verdieping waar in 2023 twee volwaardige slaapkamers zijn gerealiseerd, beide met grote dakramen. Hier bevinden zich tevens de cv-ketel (Intergas, 2014) en de wasmachineaansluiting. Ook deze verdieping is netjes afgewerkt met laminaat en lichte wandafwerking. Achter de knieschotten is nog extra opbergruimte aanwezig.
Tuin
De zonnige achtertuin ligt op het zuidwesten, waardoor je al vroeg in het voorjaar van de zon kunt genieten. De tuin is verzorgd aangelegd met een ruim terras, verhoogde borders, twee grasgedeelten en een houten berging. Aan de achtergevel hangt een breed, elektrisch bedienbaar zonnescherm. Via de poort bereik je de gezamenlijke achterom.
Bijzonderheden
• Gebouwd in 2014, uitstekend geïsoleerd
• Hardhouten kozijnen met HR++ glas, energielabel A+
• 10 zonnepanelen (2023)
• 3 airco’s (2023) in woonkamer en 2 slaapkamers
• Schilderwerk binnen en buiten 2023/2024
• HR cv-ketel (Intergas Kompakt HRE, 2014)
• Vloerverwarming op de begane grond
• Kindvriendelijke ligging aan groen en nabij speeltuin
• Zonnige tuin op het zuidwesten met berging en achterom
Aanvaarding: in overleg, omstreeks begin juli 2026.
Interesse in deze moderne woning? Maak dan snel een afspraak voor een bezichtiging!
Koopt u de woning zonder voorbehoud financiering? Dan houden wij 2 weken na het ondertekenen van de koopovereenkomst aan voor het storten van de waarborgsom/bankgarantie.
MOET UW EIGEN WONING NOG VERKOCHT WORDEN?
Wij komen graag op bezoek voor een gratis waardebepaling van uw huidige woning. U krijgt tevens van ons een deskundig verkoopadvies, antwoorden op uw vragen en een vrijblijvende offerte. Zo weet u precies waar u aan toe bent. Neem direct contact met ons op voor een afspraak!
Deze informatie is door ons met de nodige zorgvuldigheid samengesteld. Onzerzijds wordt echter geen enkele aansprakelijkheid aanvaard voor enige onvolledigheid, onjuistheid of anderszins, dan wel de gevolgen daarvan. Alle opgegeven maten en oppervlakten zijn indicatief. Van toepassing zijn de Vastgoed Nederland Consumentenvoorwaarden.





