Nieuw in de verkoop: deze charmante woning is een sfeervolle, uitgebouwde tussenwoning in een gezellig, betrokken en kinderrijk straatje in de Bloemenbuurt. De woning is recent grotendeels gerenoveerd en daardoor praktisch instapklaar. Met vier slaapkamers én een aangebouwde veranda is dit een heerlijke gezinswoning waar je je direct thuis voelt. Voorzieningen zoals scholen en winkelcentrum het Rozenplein liggen om de hoek en ook station Ede-Wageningen is met ongeveer tien minuten fietsen goed bereikbaar. De woning heeft energielabel A en is voorzien van 12 zonnepanelen.
Indeling
Entree, hal met trapopgang, meterkast (8 groepen) en toilet (2022) met fonteintje. Via de hal kom je in de woonkamer. Aan de voorzijde bevindt zich een gezellige zithoek. Aan de achterzijde ligt de royale uitbouw met een ruime leefkeuken, af te sluiten met moderne stalen schuifdeuren. Dankzij de twee daklichten valt er heerlijk veel daglicht binnen. Zowel de woonkamer als de keuken zijn voorzien van een warme parketvloer.
De keuken is uitgerust met diverse inbouwapparatuur, waaronder een 5-pits gasfornuis, afzuigkap, oven, vaatwasser en koelkast. De Portugese tegels geven deze ruimte extra charme en sfeer. Aangrenzend bevindt zich een handige voorraadkast met de aansluiting voor de wasmachine.
Eerste verdieping
De overloop biedt toegang tot twee ruime slaapkamers en een recent volledig vernieuwde badkamer (2022). Deze moderne badkamer is voorzien van een dubbel wastafelmeubel, ligbad, inloopdouche en elektrische vloerverwarming. Een raam zorgt voor natuurlijk daglicht én goede ventilatie.
Daarnaast is er een separaat toilet met fonteintje. De ouderslaapkamer beschikt over een vaste kast met leg- en hanggedeelte.
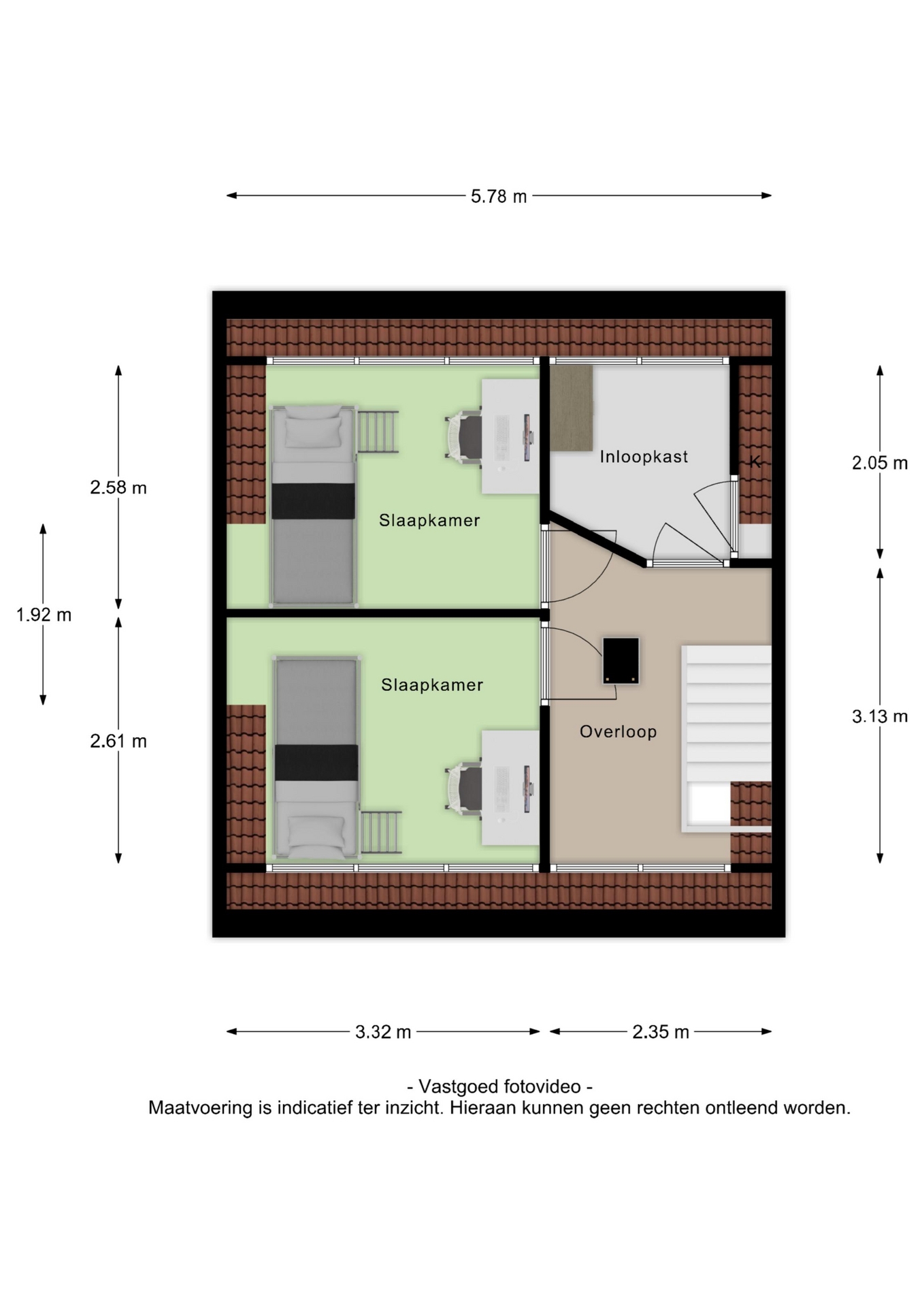
Tweede verdieping
Op de ruime overloop vind je een wastafel en toegang tot een extra kamertje, ideaal als inloopkast of werkkamer. Hier bevindt zich tevens de opstelplaats van de CV-ketel (Nefit Smartline, 2006). Daarnaast zijn er op deze verdieping nog twee slaapkamers van goed formaat, mede dankzij de dakopbouw over de volledige breedte van de woning.
Overige verdiepingen
Via een vlizotrap bereikbare bergzolder.
Tuin
Via de achterdeur stap je onder de ruime overkapping, waar voldoende plek is voor een gezellige loungehoek. De houtkachel (ter overname) zorgt ervoor dat je hier ook in het voor- en najaar heerlijk kunt zitten. De tuin ligt gunstig op het zuidwesten en heeft een stukje gras en borders met diverse planten en struiken. Achterin de tuin staat een royale houten schuur met meer dan genoeg ruimte voor fietsen, klussen en opslag. De achterom is breed genoeg voor een bakfiets of motor.
In de voortuin ligt een trampoline voor eindeloos speelplezier. Parkeren kan openbaar in de straat.
Bijzonderheden
• Sfeervolle tussenwoning met uitbouw en 4 slaapkamers
• Energielabel A, volledig geïsoleerd en voorzien van 12 zonnepanelen (2019)
• Sanitair vernieuwd in 2022
• Royale houten schuur en veranda
• Gunstig gelegen nabij voorzieningen en station
• Zonnige tuin op het zuidwesten
• De slaapkamers zijn uitgerust met elektrische rolluiken
• Aanvaarding: half juli 2026
• Nagenoeg de gehele woning is voorzien van onderhoudsvrije kunststof kozijnen
Koopt u de woning zonder voorbehoud financiering? Dan houden wij 2 weken na het ondertekenen van de koopovereenkomst aan voor het storten van de waarborgsom/bankgarantie.
Bij woningen ouder dan 20 jaar wordt tevens een asbest- en ouderdomsclausule opgenomen in de koopovereenkomst.
Deze informatie is door ons met de nodige zorgvuldigheid samengesteld. Onzerzijds wordt echter geen enkele aansprakelijkheid aanvaard voor enige onvolledigheid, onjuistheid of anderszins, dan wel de gevolgen daarvan. Alle opgegeven maten en oppervlakten zijn indicatief. Van toepassing zijn de Vastgoed Nederland consumenten voorwaarden.
MOET UW EIGEN WONING NOG VERKOCHT WORDEN?
Wij komen graag op bezoek voor een gratis waardebepaling van uw huidige woning. U krijgt tevens van ons een deskundig verkoopadvies, antwoorden op uw vragen en een vrijblijvende offerte. Zo weet u precies waar u aan toe bent. Neem direct contact met ons op voor een afspraak!





