WILT U OP HET OPEN HUIS KOMEN? Dan graag even vooraf aanmelden zodat wij u informatie over de woning kunnen sturen.
Royale geschakelde woning uit 2003 - in een fraaie jaren ’30 stijl gebouwd - met energielabel A!
Deze fijne gezinswoning is in een rustige straat gelegen nabij winkelcentrum “De Spindop”, Albert Heijn XL, Aldi, scholen, sportscholen, NS station Ede-Wageningen, een plantsoen met speelveld dat uitstekend onderhouden wordt en uitvalswegen naar de A12 en A30.
Wanneer u voor deze extra brede woning staat, valt direct de mooie jaren ’30 architectuur op. Via een sfeervolle voortuin bereikt u de voordeur met een groot afdak om droog te blijven bij regenachtig weer.
Indeling
Ruime entree, toiletruimte (2023) met hangend toilet en fonteintje, meterkast en trapopgang naar de eerste verdieping. Door de vele raampartijen, waarbij ramen aan de achterzijde zijn voorzien van een zonnescherm of screen, zijn de woonkamer, keuken en eethoek erg licht. De L-vormige keuken met een gezellige erker is gelegen aan de voorzijde van de woning en is voorzien van een grijs werkblad, spoelbak, inductiekookplaat met 4 zones, afzuigkap, koel-vries combinatie (2023), vaatwasser, combi-magnetron (2020) en veel opbergruimte. Er zijn ook voldoende stopcontacten voor al uw eventuele keukenapparaten aanwezig. Aansluitend bevindt zich de eethoek met uitzicht op de achtertuin, die te bereiken is via openslaande deuren. Bij de zithoek kunt u genieten van zowel het uitzicht van de straat als van de achtertuin van de woning. Door deze unieke indeling ontstaat een natuurlijke afscheiding tussen het woon- en eetgedeelte. De begane grond is verder voorzien van een mooie lamel parketvloer (professioneel geschuurd en geolied in 2023).
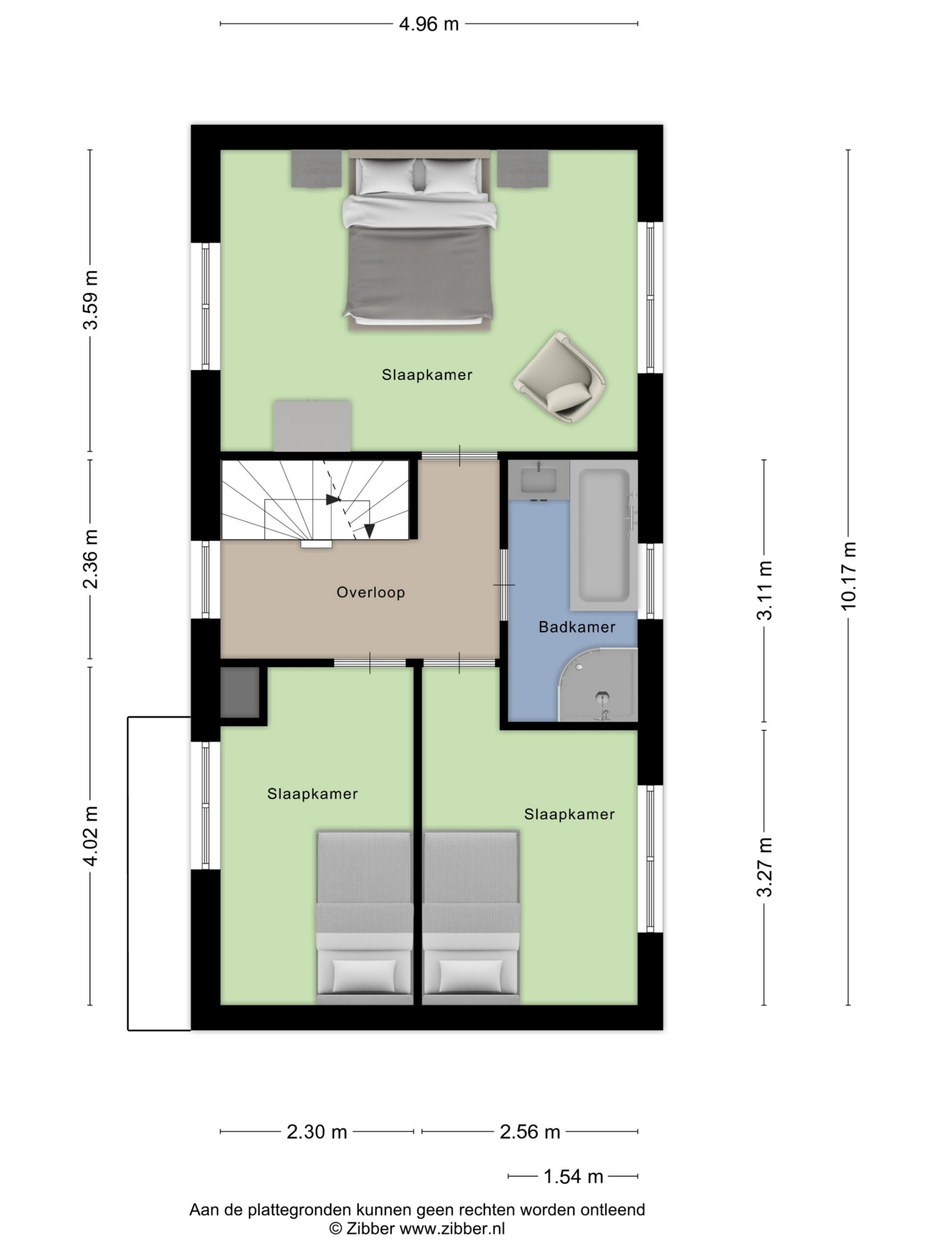
Eerste verdieping
Overloop met toegang tot de ruime ouderslaapkamer over de gehele diepte van de woning. Deze is voorzien van airco om extra comfortabel te slapen in de warme maanden. Verder zijn er op deze woonlaag nog twee slaapkamers. De badkamer is voorzien van een wastafel met spiegel en wandverlichting, een ligbad met losse handdouche en van een luxe douchecabine met handdouche, stortdouche, alsmede jet streams, een stoomfunctie en radio. De badkamer beschikt verder over een raam voor natuurlijk daglicht en frisse lucht en tevens over mechanische ventilatie.
Tweede verdieping
Ruime zolder met veel opbergruimte achter de knieschotten. Hier bevinden zich de technische installaties met een CV-ketel ( 2013), een WTW ventilatiesysteem, een boiler (120 liter), de omvormer voor de 6 zonnepanelen uit 2024 en de aansluiting voor de was-apparatuur. De vierde slaapkamer is gelegen aan de achterkant van de woning en is eveneens voorzien van airco en biedt veel opbergruimte. Deze kamer kan ook prima als werkkamer ingericht worden. Zowel de zolder als de vierde slaapkamer beschikken over een dakkapel.
Tuin
De prachtige achtertuin, die in 2024 opnieuw is aangelegd en veel privacy biedt, is gelegen op het zuiden heeft twee terrassen waarvan één tegen de achtergevel met vlonders en voorzien van een breed zonnescherm dat tegen de gevel gemonteerd is en een ander terras achter in de tuin. Verder is de tuin voorzien van een mooi grasveld, paden met wit grind, diverse borders met een combinatie van groen blijvende planten, nostalgische bloemen en een achterom. De zorgvuldig gekozen indeling en beplanting past uitstekend bij de jaren ’30 sfeer die de woning uitstraalt.
Berging:
Vrijstaande stenen berging voorzien van elektra.
Deze duurzame en comfortabele woning is van alle gemakken voorzien waardoor duurzaam en comfortabel wonen samengaan.
Bijzonderheden
- Mooie jaren ’30 architectuur;
- 4 slaapkamers;
- Keuken in 2023 deels gerenoveerd;
- Energielabel A, 6 zonnepanelen (2024) en een elektrische boiler;
- Schilderwerk buiten in 2023 professioneel uitgevoerd;
- Prachtig aangelegde tuin (2024) met na-geïsoleerde stenen berging;
- Nabij o.a. winkelcentrum, speeltuin, scholen, sportschool, gezondheidscentrum, NS-station, A12 en A30.
Aanvaarding: in overleg.
Interesse? Maak dan snel een afspraak voor een bezichtiging!
Koopt u de woning zonder voorbehoud financiering? Dan houden wij 2 weken na het ondertekenen van de koopovereenkomst aan voor het storten van de waarborgsom/bankgarantie. Wij maken gebruik van de standaard VBO koopovereenkomst.
Deze informatie is door ons met de nodige zorgvuldigheid samengesteld. Onzerzijds wordt echter geen enkele aansprakelijkheid aanvaard voor enige onvolledigheid, onjuistheid of anderszins, dan wel de gevolgen daarvan. Alle opgegeven maten en oppervlakten zijn indicatief. Van toepassing zijn de VBO Consumenten voorwaarden.





