Aan één van de mooiste lanen van Ede, gelegen in het rustige Beatrixpark en omringd door groen, ligt deze uitgebouwde twee-onder-één kapwoning met een royale woonkamer, 5 slaapkamers, een diepe achtertuin en een garage. De woning bevindt zich op korte afstand van het centrum van Ede, winkelcentrum het Rozenplein, scholen, kinderopvang en een medisch centrum maar ook van de Ginkelse heide en de bossen. NS Intercity station Ede-Wageningen en de A12/A30 zijn eveneens goed bereikbaar.
Indeling
De ingang bevindt zich aan de zijkant van de woning. Entree, hal, meterkast met 9 groepen, kelder op stahoogte, toilet met fonteintje en trapopgang. De aanwezige traplift zal nog verwijderd worden. Vanuit de hal heeft u toegang tot de keuken en woonkamer. De gesloten keuken is voorzien van een 1/½ spoelbak, een 4 zones inductiekookplaat, afzuigkap, koelkast, vriezer, combi-oven, een vaste kast met doorgeefluik naar de woonkamer en een deur die direct toegang biedt tot de achtertuin. De L-vormige woonkamer is door de vele ramen erg licht. De woonkamer beschikt over een gezellige open haard, de aangewezen plek om te genieten van een goed boek, een glas wijn of een fijn gesprek bij een knappend haardvuurtje. Vanuit de woonkamer bereikt u de voortuin via openslaande deuren en de achtertuin via een deur.
Eerste verdieping
De overloop biedt toegang biedt toegang tot vier slaapkamers en een badkamer.
Er zijn op deze verdieping twee slaapkamers aan de voorzijde, waarvan de ouderslaapkamer direct toegang heeft tot de badkamer. Aan de achterzijde zijn ook twee slaapkamers, waarvan één met een deur naar het balkon en de ander met een wastafel. Alle slaapkamers zijn ruim en licht. De badkamer is via de overloop en via de ouderslaapkamer te bereiken en is voorzien van een wastafel, inloopdouche en 2e toilet.
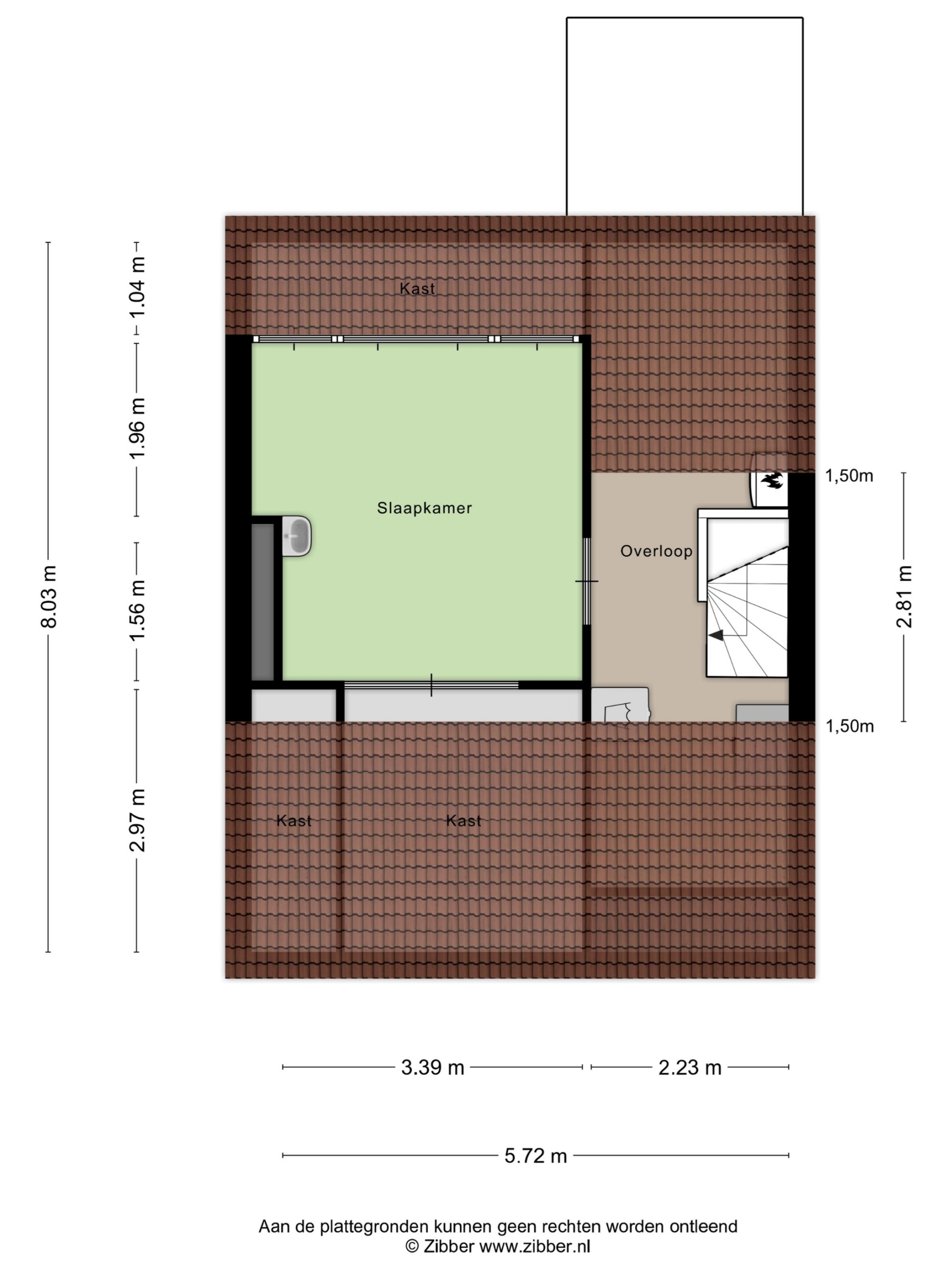
Tweede verdieping
Via een vaste trap bereikt u de voorzolder met CV-opstelling (Nefit HR Topline – 2007) en aansluitingen voor de wasapparatuur. Hiernaast bevindt zich een ruime 5e slaapkamer voorzien van een dakkapel, een wastafel, een grote vaste kast en opbergruimte achter de knieschotten.
De woning is na geïsoleerd (spouwmuur-, vloer- en dak isolatie en dubbel glas) en beschikt over een recent afgegeven energielabel C. De woning is daarnaast voorzien van glasvezel en van een alarmsysteem.
Tuin
Naast een ruime groene voortuin is er een heerlijke diepe (21 meter) en fraai aangelegde achtertuin op het oosten. De achtertuin biedt veel rust en privacy en beschikt over diverse plantenperken met veel bloemen, enkele markante bomen, 2 vijvers en 3 terrassen waarvan één zonnig terras direct achter de woning, met een elektrisch te bedienen zonnescherm en een tweede terras in het midden van de tuin en een derde terras in de schaduwrijke achtertuin. De achtertuin is ook te bereiken vanaf de oprit via een ingang aan de zijkant.
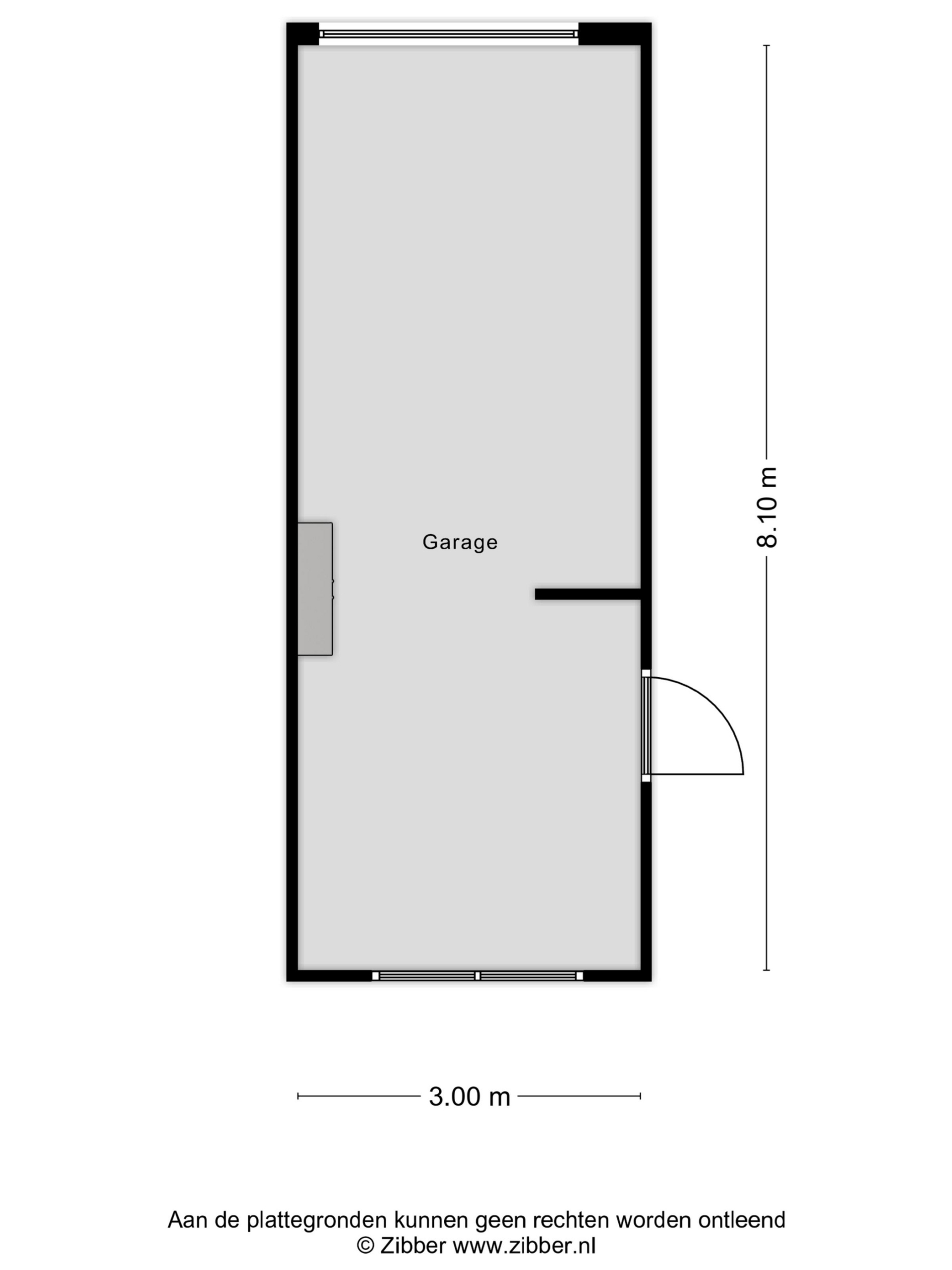
Garage en Berging
Via de lange oprit bereikt u de vrijstaande stenen garage met openslaande deuren met een aansluitende berging die eveneens vanuit de achtertuin te bereiken is. De garage en berging zijn voorzien van elektra. Achter de berging bevindt zich nog een opberghok, bijvoorbeeld voor tuingereedschap.
Bijzonderheden
- Prachtige ligging in het Beatrixpark;
- Royale woonkamer en 5 ruime slaapkamers;
- Ruim perceel van 387 m2;
- Dakkapel met nokverhoging op de 2e verdieping;
- Praktische kelder;
- Diepe en fraai aangelegde achtertuin met veel privacy;
- Ruime stenen garage/berging
- Energielabel C;
- Recent bouwkundig rapport beschikbaar;
Aanvaarding: in overleg, vanaf januari 2024.
Koopt u de woning zonder voorbehoud financiering? Dan houden wij 2 weken na het ondertekenen van de koopovereenkomst aan voor het storten van de waarborgsom/bankgarantie.
ENTHOUSIAST GEWORDEN?
Deze ruime woning is zeker een kijkje waard. Maak snel een afspraak om een bezichtiging in te plannen!
MOET UW EIGEN WONING NOG VERKOCHT WORDEN?
Wij komen graag op bezoek voor een gratis waardebepaling van uw huidige woning. U krijgt tevens van ons een deskundig verkoopadvies, antwoorden op uw vragen en een vrijblijvende offerte. Zo weet u precies waar u aan toe bent. Neem direct contact met ons op voor een afspraak!
Deze informatie is door ons met de nodige zorgvuldigheid samengesteld. Onzerzijds wordt echter geen enkele aansprakelijkheid aanvaard voor enige onvolledigheid, onjuistheid of anderszins, dan wel de gevolgen daarvan. Alle opgegeven maten en oppervlakten zijn indicatief. Van toepassing zijn de VBO Consumenten voorwaarden.





