Uitgebouwde tussenwoning uit 2003 - in een fraaie jaren ’30 stijl gebouwd - met energielabel A!
Deze fijne gezinswoning is in een rustige straat gelegen nabij het winkelcentrum “De Spindop”, Albert Heijn XL, scholen, NS station Ede-Wageningen, een plantsoen met speelveld dat uitstekend onderhouden wordt en uitvalswegen naar de A12 en A30.
Indeling
Overdekte entree, ruime en lichte hal met garderobe, meterkast, moderne toiletruimte met zwevend toilet en fonteintje, de trapopgang en een deur naar de woonkamer. Uitgebouwde (2,3 meter) en zeer ruime woonkamer met tegelvloer, een praktische trapkast en openslaande deuren naar de achtertuin. Er is ook een extra grote lichtkoepel in de uitbouw aanwezig voor extra daglichttoetreding. De moderne L-vormige open keuken is aan de voorzijde gelegen en voorzien van een spoelbak met een zwarte kraan, lichtkleurig composieten aanrechtblad met veel werkvlak, en SMEG 6-pits gasfornuis met extra grote oven, afzuigkap, koel/vriescombinatie, vaatwasser en voldoende opbergruimte. Kortom alles wat u nodig hebt om te kokkerellen.
Eerste verdieping
Overloop die toegang biedt tot alle ruimtes. Aan de voorzijde bevindt zicht een slaapkamer en een badkamer. Een dakkapel strekt zich uit over zowel de slaapkamer als de badkamer. De moderne badkamer is voorzien van een wastafelmeubel, een spiegelkast met verlichting, een inloopdouche met brede afvoergoot , 2e toilet, radiator, ventilatie en een raam voor natuurlijk daglicht en extra ventilatie. Aan de achterzijde zijn nog 2 slaapkamers waaronder de ruime ouderslaapkamer.
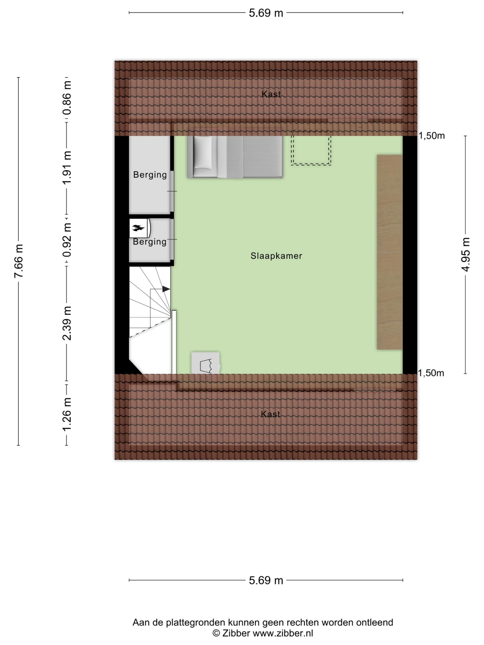
Tweede verdieping
Via een vaste trap bereikt u de grote open zolder met een Velux dakraam, aansluitingen voor de was-apparatuur en voldoende opbergruimte achter de knieschotten. Deze ruimte wordt momenteel gebruikt als 4e slaapkamer. In een afgesloten ruimte bevindt zich de nieuwe hybride voorbereide CV-ketel (Remeha – 2022) en nieuwe ventilatiebox (2023). Op de zolder zijn voldoende mogelijkheden voor het realiseren van extra slaapkamers.
Tuin
De achtertuin is gelegen op het oosten en is voorzien van een terras, ingebouwde spotjes in de achtergevel, perken met volwassen (klim)planten en een achterom.
Berging:
Vrijstaande stenen berging voor het stallen van fietsen en het opbergen van tuingereedschappen.
Bijzonderheden
- Instapklare uitgebouwde tussenwoning;
- Moderne keuken en badkamer;
- 4 slaapkamers en mogelijkheid voor een vijfde slaapkamer;
- Energielabel A;
- Nieuwe CV ketel (voorbereid op hybride warmtepomp - 2022) en ventilatiesysteem (2023);
- Schilderwerk in 2023 uitgevoerd door professioneel schildersbedrijf.
- Nabij o.a. winkelcentrum, speeltuin, scholen, sportschool, gezondheidscentrum, Station Ede-Wageningen.
Aanvaarding: bij voorkeur eind april 2024
Interesse in deze mooie woning? Bel ons dan voor het maken van een afspraak voor een bezichtiging.
Bij de verkoop zal de standaard VBO koopovereenkomst worden gehanteerd.
Bij woningen ouder dan 20 jaar worden de volgende clausules opgenomen in de koopovereenkomst:
- ouderdomsclausule
- asbestclausule (bij woningen van voor 1993)
Indien er geen bouwkundige keuring plaats vindt dan zal hier ook een clausule over worden opgenomen.
Wordt de woning gekocht zonder voorbehoud van financiering? Dan hanteren wij een termijn van 2 weken na het opstellen van de koopovereenkomst voor het storten van de bankgarantie/waarborgsom.
Virtuele rondleiding in 3D? Extra buurtinformatie? Bekijk het allemaal op onze website!
Deze informatie is door ons met de nodige zorgvuldigheid samengesteld. Onzerzijds wordt echter geen enkele aansprakelijkheid aanvaard voor enige onvolledigheid, onjuistheid of anderszins, dan wel de gevolgen daarvan. Alle opgegeven maten en oppervlakten zijn indicatief. Van toepassing zijn de VBO Consumenten voorwaarden.





