Gelegen op geliefde locatie in een rustige straat en toch op loopafstand van alle voorzieningen in het centrum van Ede, dit mooie en goed verzorgde 3-kamer appartement op de eerste woonlaag van een modern en kleinschalig complex uit 2012. Het appartement beschikt over een berging in de onderbouw en een ruim en zonnig balkon op het zuiden met fraai uitzicht over de wijk. Naast het centrum van Ede bent u ook op nog geen 10 minuten van de bossen en heide waar u lekker kunt sporten of wandelen. Treinstation Ede-Centrum is ook op loopafstand bereikbaar.
Indeling
Indeling appartementencomplex:
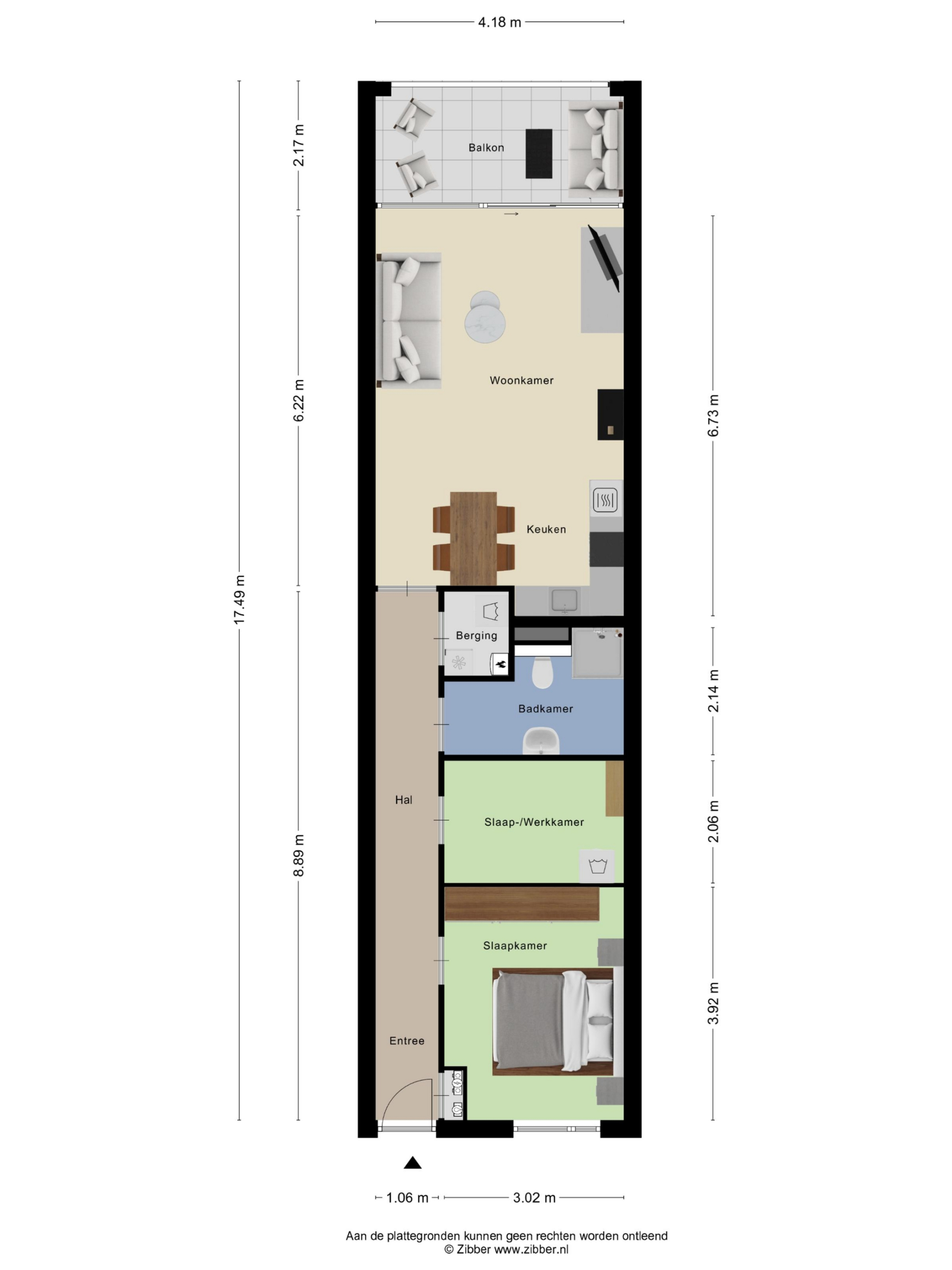
Hoofdentree met belbord en brievenbussen. Hal met toegang tot de privébergingen en trappenhuis naar de verschillende appartementen. Via het trappenhuis naar de 1e verdieping waar het appartement gelegen is.
Indeling appartement:
Entree, lange gang welke toegang biedt tot alle vertrekken, meterkast (6 groepen, 2 aardlekschakelaars, slimme meter), aparte inbouwkast met de CV-combiketel (Intergas, 2010) en de aansluiting voor de wasmachine. Ruime slaapkamer aan de galerijkant die voldoende plek biedt voor een tweepersoonsbed en een grote garderobekast. Aparte kamer die als logeer-/werk- of hobbykamer kan dienen De ruime badkamer is voorzien van een wastafelmeubel, douchecabine, toilet en mechanische ventilatie.
L-vormige open keuken voorzien van inbouwapparatuur zoals gaskookplaat, afzuigkap, combi-oven koelkast met vrieslade, vaatwasser en voldoende opbergkasten. Knusse woonkamer met een hoogwaardige laminaatvloer, zithoek bij het balkon en eethoek bij de keuken. Via een schuifpui krijgt u toegang tot een echt ruim inpandig balkon op het zuiden waar u heerlijk van de zon en het mooie uitzicht kunt genieten.
Berging:
Er bevindt zich nog een privé berging in de onderbouw.
Parkeren:
Parkeren met vergunning, er is voldoende parkeergelegenheid in de omgeving van het complex.
Balkon
Balkon op het zuiden
Bijzonderheden
- Verzorgd 3-kamer appartement
- Energielabel A;
- Gelegen in een rustige straat aan de rand van het centrum;
- Ruim balkon op het zuiden;
- Berging in de onderbouw;
- mogelijkheid om maximaal 3 parkeervergunningen aan te vragen;
- Op korte afstand van station Ede-Centrum en de bossen en heide.
Aanvaarding: in overleg
ENTHOUSIAST GEWORDEN?
Dit prachtige appartement is zeker een kijkje waard. Maak dan ook snel een afspraak om een bezichtiging in te plannen!
MOET UW EIGEN WONING NOG VERKOCHT WORDEN?
Wij komen graag op bezoek voor een gratis waardebepaling van uw huidige woning. U krijgt tevens van ons een deskundig verkoopadvies, antwoorden op uw vragen en een vrijblijvende offerte. Zo weet u precies waar u aan toe bent. Neem direct contact met ons op voor een afspraak!
Deze informatie is door ons met de nodige zorgvuldigheid samengesteld. Onzerzijds wordt echter geen enkele aansprakelijkheid aanvaard voor enige onvolledigheid, onjuistheid of anderszins, dan wel de gevolgen daarvan. Alle opgegeven maten en oppervlakten zijn indicatief. Van toepassing zijn de VBO Consumenten voorwaarden.





