Op zoek naar een ruime en goed onderhouden tussenwoning op een rustige plek en met vrij uitzicht? Dan is deze woning zeker wat voor u! De woning heeft maar liefst 4 slaapkamers, een nette keuken en badkamer, een stenen berging met vliering, een diepe tuin en u kunt er parkeren op eigen terrein. De woning bevindt zich nabij het winkelcentrum “De Stadspoort”, bioscoop, basisschool, kinderopvang en het ziekenhuis de Gelderse Vallei. U bent ook op een paar autominuten van het centrum, het intercity station Ede-Wageningen en de autosnelwegen A12 en A30.
Indeling
Begane grond:
Entree, hal, meterkast, toilet met fonteintje en trapopgang naar de eerste verdieping.
Sfeervolle woonkamer met laminaatvloer, praktische trapkast voor opbergruimte en deur naar de diepe achtertuin. Door de grote raampartij is de woonkamerkamer heerlijk licht.
Open keuken (2005) aan de voorzijde van de woning en met vrij uitzicht! De keuken is voorzien van alle nodige apparatuur zoals 5 pits gaskookplaat met wok brander, afzuigkap, combi-oven, vaatwasser, hype grijze Amerikaanse koelkast uit 2018 (ter overname) en voldoende opbergkasten.
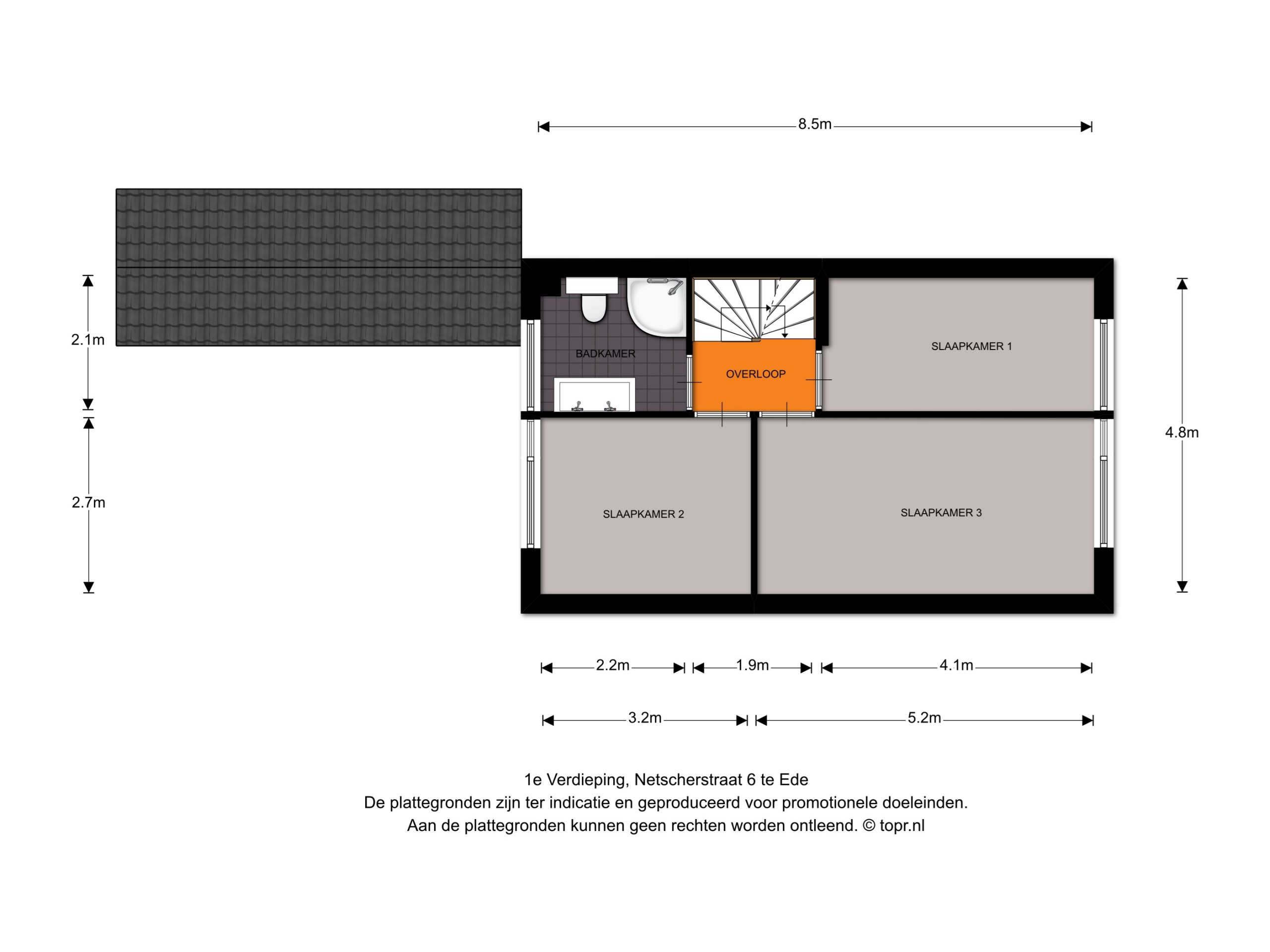
1e verdieping:
Overloop met toegang tot 3 ruime slaapkamers waarvan 2 aan de achterzijde. Complete badkamer (2005) met dubbele wastafel, douchecabine en 2e toilet en mechanische ventilatie. Deze verdieping heeft rechte wanden waardoor er geen ruimte verloren gaat.
Vaste trap naar ….
2e verdieping:
Volledig afgewerkte zolderverdieping. Voorzolder met aansluitingen wasapparatuur en CV- HR ketel (Remeha Avanta - 2010). Royale slaapkamer met vaste kast en Velux dakraam. Daarnaast is er nog een
vliering met extra bergruimte.
Tuin:
In de voortuin bevindt zich een stenen berging met elektra en grote vliering voor extra bergruimte.
De achtertuin is op het oosten gelegen en beschikt over een overkapping en een achterom.
Parkeren:
U kunt uw auto gewoon op uw eigen oprit parkeren.
Bijzonderheden:
- Ruime en goed onderhouden woning met vrije uitzicht;
- Nette keuken en badkamer;
- 4 slaapkamers;
- Stenen berging aan de voorkant van de woning;
- Grote achtertuin van 12 meter diep bij 5 meter breed;
- Parkeren op eigen terrein;
- Rustig gelegen nabij vele faciliteiten;
- Buitenschilderwerk in 2019 gerealiseerd.
ENTHOUSIAST GEWORDEN?
Deze mooie woning is zeker een kijkje waard.
Maak dan ook snel een afspraak om een bezichtiging in te plannen!
MOET UW EIGEN WONING NOG VERKOCHT WORDEN?
Wij komen graag op bezoek voor een gratis waardebepaling van uw huidige woning. U krijgt tevens van ons





