Vlakbij het centrum ligt dit royale, 3-kamer appartement met veel lichtinval, een groot balkon op het zuiden en een eigen parkeerplaats.
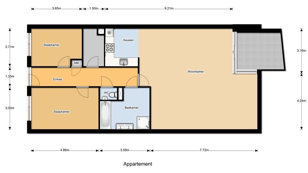
Het ruime appartement, dat op de eerste verdieping ligt, maakt deel uit van een kleinschalig, jong complex met 10 appartementen. Het appartement biedt maar liefst 120 m2 woonoppervlakte en beschikt over een ruime living van ca. 60 m2, twee slaapkamers, een grote en compleet ingerichte badkamer met bad en aparte douche en een aparte toiletruimte.
De woning is voorzien van extra brede deuren en heeft geen drempels.
Het balkon grenst aan de woonkamer. U heeft er veel privacy en kunt de hele dag van de zon genieten.
Het appartement biedt veel opslagruimte: naast de inpandige berging, zijn er in de onderbouw nog een berging, een aparte overdekte fietsenstalling en een eigen parkeerplaats. Ook zijn er achter het complex gratis parkeerplaatsen voor bezoekers.
Indeling van het appartementencomplex:
Centraal afgesloten entree met video-intercom, trappenhuis/lift.
Souterrain: parkeerkelder (op afstand te bedienen), eigen berging, gezamenlijke containerruimte en aparte fietsenberging.
Achter het gebouw, op eigen terrein: gratis parkeerplaatsen voor bezoekers. Vlakbij het centrum ligt dit royale, 3-kamer appartement met veel lichtinval, een groot balkon op het zuiden en een eigen parkeerplaats.
Indeling van het appartement:
Via de voordeur komt u in de hal die toegang geeft tot de overige vertrekken. De royale living van ca. 60 m2 heeft door de L-vorm een grote raampartij op het zuiden. Dit biedt een mooie lichtinval. Het heeft tevens een elektrisch bedienbaar zonnescherm. Via een schuifpui gaat u naar het ruime balkon (gedeeltelijk inpandig) waar u de hele dag kunt genieten van de zon.
De open keuken is neutraal van kleur en voorzien van diverse inbouwapparatuur zoals een combi-oven, vaatwasser, gaskookplaat en afzuigkap.
De beide slaapkamers liggen aan de achterzijde. De grootste slaapkamer biedt voldoende ruimte voor een tweepersoons bed en kastenwand. De andere kamer is prima geschikt als extra slaapkamer of in te richten als studeer- of kinderkamer.
Verder is het appartement voorzien van een ruime, volledig betegelde badkamer, met ligbad en aparte douchehoek met glazen deur. Er staat een modern badkamermeubel met wastafel en verlichting.
In de handige inpandige berging vindt u de wasmachine- en drogeraansluiting en veel opslagruimte. Ook hangen hier de HR-combiketel en de mechanische ventilatie unit.
De toiletruimte is volledig betegeld en heeft een hangend toilet en fonteintje.
Ruim balkon op het zuiden.
Bijzonderheden:
• Royaal 3-kamer appartement, inclusief eigen inpandige parkeerplaats
• Veel lichtinval
• Ruime woonkamer
• Mogelijkheid om een aparte werk-/ kantoorruimte te creëren in de woonkamer
• Groot balkon op het zuiden met veel privacy
• Rolstoel-toegankelijk (zonder drempels en met extra brede deuren en ruime douchecabine)
• Grote, luxe badkamer met bad en aparte ruime douche
• Compleet ingerichte keuken
• Kleinschalig appartementencomplex uit 2001
• Ligging vlakbij het centrum met al haar voorzieningen, scholen, NS-station en
uitvalswegen. Supermarkt in het naastgelegen gebouw
• Videofoon-intercom, bediening vanuit de woonkamer
• Gratis parkeerplaatsen voor bezoekers op eigen terrein, achter het gebouw
• Vraagprijs is inclusief 1 parkeerplaats in de onderbouw, een extra parkeerplaats is
bij te kopen.
• De bushalte bevindt zich voor de deur.
U bent van harte welkom om het appartement te komen bezichtigen!
VRAAGPRIJS
Prijs appartement: € 275.000,-- inclusief eigen parkeerplaats t.w.v. € 15.000,-
Deze informatie is door ons met de nodige zorgvuldigheid samengesteld. Onzerzijds wordt echter geen enkele aansprakelijkheid aanvaard voor enige onvolledigheid, onjuistheid of anderszins, dan wel de gevolgen daarvan. Alle opgegeven maten en oppervlakten zijn indicatief. Van toepassing zijn de VBO voorwaarden.





