Ruime eengezinswoning uit 2004 - gebouwd in een fraaie jaren ’30 stijl - met energielabel A!
Vier royale slaapkamers en zelfs de mogelijkheid om een ruime vijfde slaapkamer te realiseren. Dat is één van de verrassingen die deze ruime woning te bieden heeft. Deze ideale gezinswoning heeft een gunstige ligging ten opzichte van winkels, scholen, uitvalswegen, station Ede-Wageningen, een plantsoen met speelveld en is daarnaast uitstekend onderhouden.
Indeling
Entree, ruime hal met houten vloer, meterkast, toilet, trapopgang en een provisiekast. De tuingerichte woonkamer heeft dubbele deuren naar de achtertuin en een open keuken aan de voorzijde van de woning. In de keuken bevindt zich een L-vormige inbouwkeuken compleet met koelkast en vriezer (2018), vaatwasser (2017), 5-pits gaskookplaat, afzuigkap, combi-oven en een apothekerskast. De gehele begane grondvloer is voorzien van een mooie houten vloer.
Achtertuin met een praktische stenen berging en een achterom.
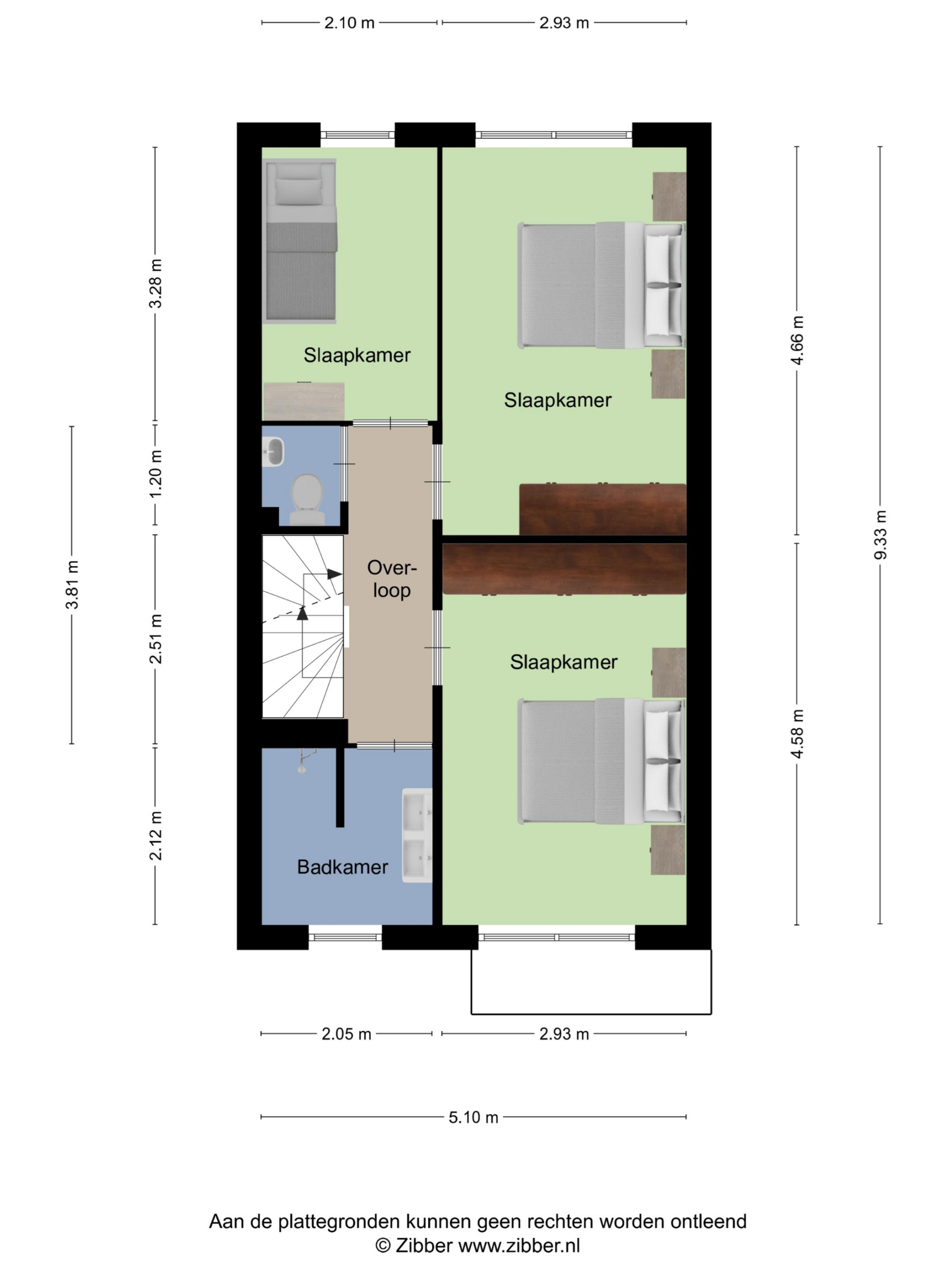
Eerste verdieping
Overloop, apart tweede toilet met fonteintje en drie slaapkamers van een mooi formaat. De recent gerenoveerde badkamer is voorzien van een ruime inloopdouche, dubbel wastafelmeubel, handdoekradiator en fraaie zwarte kranen. Deze gehele verdieping is afgewerkt met een laminaatvloer in een lichte kleurstelling.
Tweede verdieping
Middels een vaste trap is de tweede verdieping bereikbaar. Op deze verdieping bevindt zich de opstelplaats voor wasmachine, wasdroger, CV-ketel (Ferroli Bluesense 4, 2021) en WTW-installatie. De verdieping is afgewerkt met een laminaatvloer en inbouwspots. Op deze etage bevindt zich daarnaast een zeer ruime slaapkamer met dakkapel aan de achterzijde en er is de mogelijkheid om nog een extra kamer te realiseren.
Overige verdiepingen
Deze verdieping is eveneens middels een vaste trap bereikbaar. Deze verdieping kan gebruikt worden als werkkamer of als extra bergruimte en is voorzien van een dakraam.
Tuin
Beschutte voortuin op het zuiden.
Achtertuin op het noorden, met achterom en vrijstaande stenen berging.
Bijzonderheden
Bijzonderheden:
- Ruime eengezinswoning met 4 slaapkamer en mogelijkheid voor een vijfde;
- Werkkamer op de bovenste verdieping
- Locatie nabij allerlei voorzieningen, scholen, NS station en op enkele minuten van de A12/A30;
- Recent vernieuwde CV-ketel (2021) en badkamer;
- Volledig geïsoleerd en met een energielabel A.
Aanvaarding: vanaf medio juni 2024.





