In een rustige woonomgeving nabij de bossen van Oranje Nassau Oord gelegen, deze fijne jaren ’30 twee-onder-één-kapwoning met fraaie karakteristieke details, 4 slaapkamers, een eigen oprit voor meerdere auto’s, een stenen garage en een achtertuin met veel privacy die gesitueerd is op het zuidoosten. De woning bevindt zich op korte afstand van alle voorzieningen, zoals winkels, scholen, kinderdagverblijven, bossen, openbaar vervoer en heeft een goede uitvalsbasis naar snelwegen A50 en A12.
Wat bij aankomst direct opvalt, is de sfeervolle rustige straat met zijn mooie hoge bomen en het gefluit van de vogels. Verscholen achter de groene voortuin ziet u de wit geschilderde typische jaren ’30 woning met een aantal leuke details uit deze bouwperiode zoals een erker, paneeldeuren en glas-in-lood ramen. Met een paar aanpassingen kunt u er uw droomhuis van maken.
Indeling
Entree met tweedelige voordeur, een afdak en buitenverlichting.
Hal met tegelvloer, trapopgang, meterkast, volledig betegelde toiletruimte met zwevend toilet en fonteintje. Ruime separate keuken gelegen aan de voorkant van de woning en voorzien van een royaal werkblad, 1½ spoelbak, 4 pits gaskookplaat, afzuigkap, combi-oven, koelkast, vaatwasser en voldoende opbergruimte. De keuken heeft, door de aanwezigheid van een erker met glas-in-lood (v.v. dubbel glas) bovenramen en van een extra zijraam, veel daglicht. Aansluitend aan de keuken bevindt zich de volledig betegelde bijkeuken met aansluitingen voor de was-apparatuur en toegang tot de kelder (8 m²).
Lichte woonkamer met wederom karakteristieke jaren ’30 details als openslaande deuren met bovenramen die toegang bieden tot de achtertuin met een terras voorzien van een elektrisch zonnescherm. De woonkamer heeft eveneens een zijraam met prachtige glas-in-lood bovenramen.
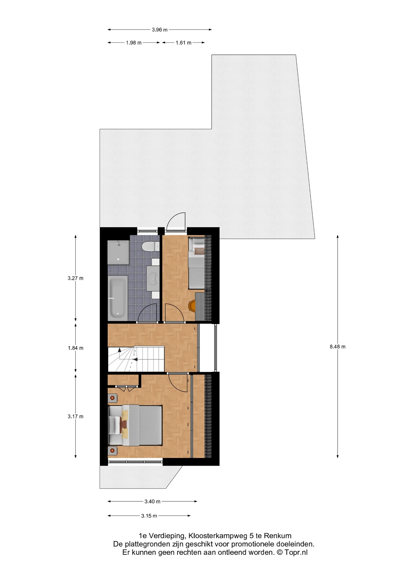
Eerste verdieping
Overloop met een raam en vaste opbergkast. Ouderslaapkamer met vaste twee kasten en aan de voorkant gelegen.
Aan de achterkant bevindt zich een 2e slaapkamer met een deur naar het platte dak en de badkamer.
Volledig betegelde ruime badkamer voorzien van een wastafelmeubel, douchecabine, bad, 2e toilet, radiator, ventilatie en een raam voor fijn natuurlijk daglicht.
Vaste trap naar …
Tweede verdieping
Overloop met toegang tot twee slaapkamers, beide voorzien van een Velux dakraam. In één van de slaapkamers bevindt zich de CV-ketel ( ATAG – ca. 1998) en een zonlichtboiler.
Tuin
Voor- zij- en achtertuin. Ruime en groene voortuin met eigen oprit. De achtertuin is gelegen op het zuidoosten en kan naar eigen inzicht verder aangelegd worden.
Garage:
Aangebouwde garage met betonnen vloer voorzien van elektra en een deur naar de achtertuin.
Bijzonderheden
- Jaren ’30 twee-onder-één-kapwoning met karakteristieke details;
- Gelegen in een sfeervolle en rustige straat, nabij de natuur en veel voorzieningen;
- 4 slaapkamers;
- Eigen oprit voor meerdere auto’s;
- Aangebouwde garage met deur naar de achtertuin.
- Achtertuin met veel privacy en gelegen op het zuidoosten;
- Aanvaarding: in overleg, maar is eventueel op korte termijn mogelijk.
Geïnteresseerd in deze leuke woning? Maak dan direct een afspraak voor een bezichtiging!
Koopovereenkomst:
Bij de verkoop zal de standaard VBO koopovereenkomst worden gehanteerd.
Bij woningen ouder dan 20 jaar worden de volgende clausules opgenomen in de koopovereenkomst:
- ouderdomsclausule
- asbestclausule (bij woningen van voor 1993)
Indien er geen bouwkundige keuring plaats vindt dan zal hier ook een clausule over worden opgenomen.
Wordt de woning gekocht zonder voorbehoud van financiering? Dan hanteren wij een termijn van 2 weken na het opstellen van de koopovereenkomst voor het storten van de bankgarantie/waarborgsom.
Deze informatie is door ons met de nodige zorgvuldigheid samengesteld. Onzerzijds wordt echter geen enkele aansprakelijkheid aanvaard voor enige onvolledigheid, onjuistheid of anderszins, dan wel de gevolgen daarvan. Alle opgegeven maten en oppervlakten zijn indicatief. Van toepassing zijn de VBO Consumenten voorwaarden.
MOET UW EIGEN WONING NOG VERKOCHT WORDEN?
Als beste beoordeeld makelaarskantoor van Ede en omgeving komen wij graag bij u langs voor een gratis waardebepaling van uw huidige woning. U krijgt tevens van ons een deskundig verkoopadvies, antwoorden op uw vragen en een vrijblijvende offerte. Zo weet u precies waar u aan toe bent. Neem direct contact met ons op voor een afspraak!





