Wij hebben het genoegen u dit royale 3-kamer sfeervolle appartement met hoogwaardige afwerking en gebruik van luxe materialen te koop aan te bieden. Het appartement ligt op de begane grond en beschikt over een prachtige achtertuin van ca. 45 m² op het westen. Het appartement is in 2015 geheel gerenoveerd met veel oog voor detail.
Indeling:
U komt het appartement binnen via een eigen voortuin die middels een klassiek hekwerk afgesloten is.
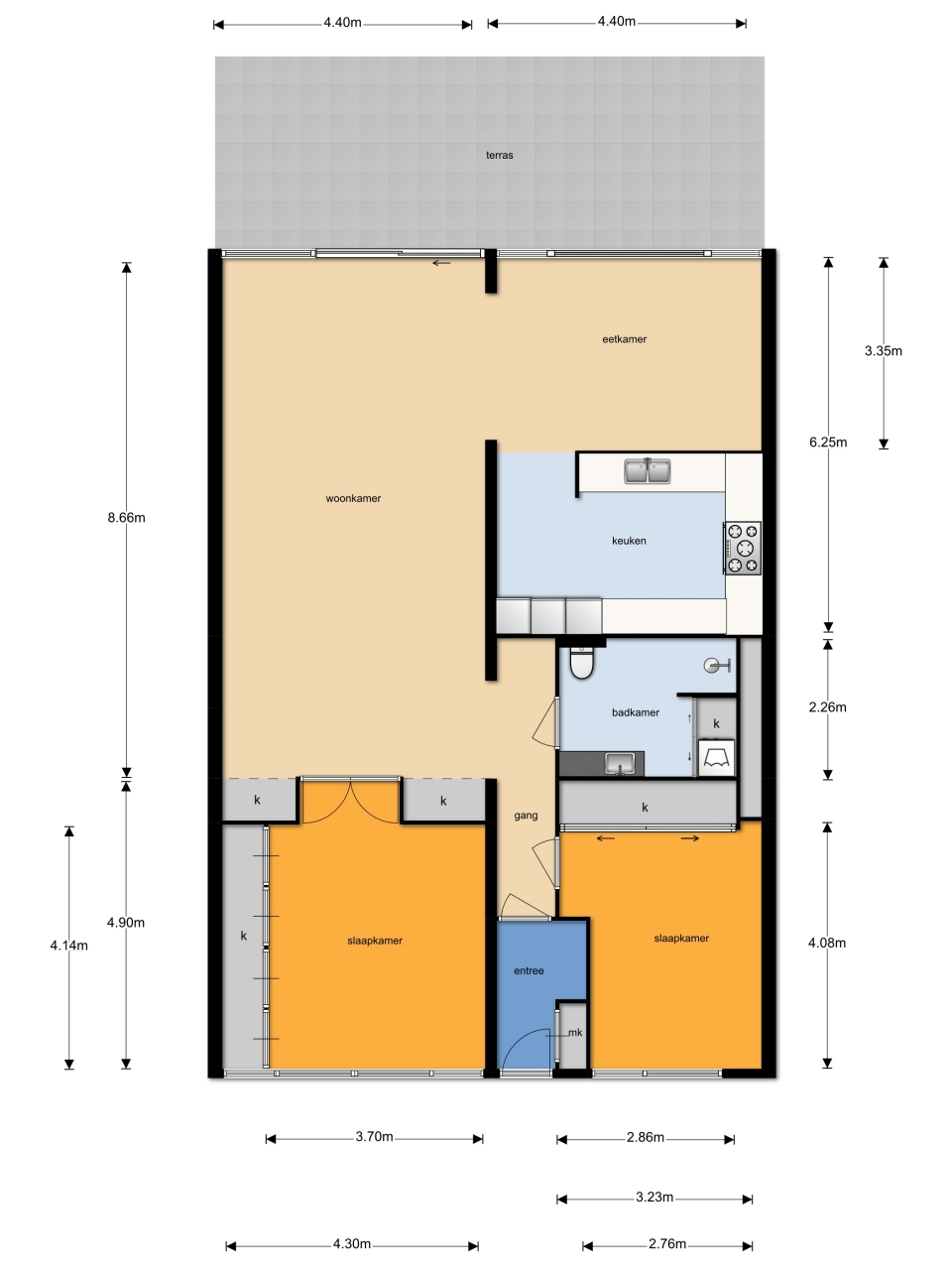
Eigen entree met videofoon installatie, hal met garderobe die toegang biedt tot een toilet met fonteintje, een luxe badkamer met granito vloer, wastafel, inloopdouche met stort/handdouche en bodyjets. Eerste ruime slaapkamer met kastenwand.
Royale woonkamer met mooie PVC vloer in gedekte tint, elektrisch bedienbare zonneschermen en schuifpui naar de ruime en fraai aangelegde achtertuin op het westen. Vanuit de woonkamer is via twee prachtige antieke openslaande deuren, welke rechtstreekse afkomstig zijn uit een Frans “maison de maître” (herenhuis), de tweede ruime slaapkamer met kastenwand bereikbaar. Een echte eyecatcher!
In de verlenging van de woonkamer bevindt zich een half open keuken welke is voorzien van alle gemakken waaronder een beton look blad, 6 pits gasfornuis met wok brander, schouw met afzuigkap, twee ovens, grote koelkast en separate vriezer (7 laden). Aansluitend aan de keuken is een ruim eetgedeelte te vinden waar het lekker Bourgondisch genieten is met vrienden of familie.
Bergruimte:
Gemeenschappelijke berging en privé berging (7 m2).
Parkeren:
Openbaar parkeren (vaak voor de deur mogelijk).
Bijzonderheden:
- Geheel gerenoveerd (2015) sfeervol appartement met hoogwaardige afwerking;
- Maar liefst 120 m² woonoppervlakte!;
- Eigen voortuin en entree;
- Gehele woning voorzien van PVC vloer
- Luxe keuken (2016);
- Fraai aangelegde achtertuin op het westen en voorzien van elektra, zonneschermen en twee
buitenkranen ;
- Voorzien van elektrische rolluiken.
- Parkeren voor de deur;
- Inpandige berging.
ENTHOUSIAST GEWORDEN?
Dat kunnen we ons voorstellen.
Maak dan snel een afsprak om deze woning te mogen bezichtigen!
MOET UW EIGEN WONING NOG VERKOCHT WORDEN?
Wij komen graag op bezoek voor een gratis waardebepaling van uw huidige woning. U krijgt tevens van ons een deskundig verkoopadvies, antwoorden op uw vragen en een vrijblijvende offerte. Zo weet u precies waar u aan toe bent. Neem direct contact met ons op voor een afspraak!
Deze informatie is door ons met de nodige zorgvuldigheid samengesteld. Onzerzijds wordt echter geen enkele aansprakelijkheid aanvaard voor enige onvolledigheid, onjuistheid of anderszins, dan wel de gevolgen daarvan. Alle opgegeven maten en oppervlakten zijn indicatief. Van toepassing zijn de VBO Consumenten voorwaarden





